How to Configure and Use E3.WiringCockpit

How to Configure and Use E3.WiringCockpit

Menu

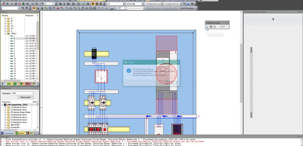
E3.WiringCockpit is a great Cabinet Production tool to use alongside with E3.series. Making it easier to connect between engineering and manufacturing. When using E3.WiringCockpit the user creates and works from a Wire List of the E3.series panel project. The window displays the wiring information for the worker to follow. Walking them through the installations of each wire step by step. The information provided shows the To and From connection points of the conductor. Additionally, the tool highlights the conductor on the sheet for extra visual support. With E3.WiringCockpit saves the data to the Wire List if you need to pause the tool. That way when you start the wiring function again you can pick up where you had stopped.

Check out more of our Tech-Tips here!

Laura Mirto
Laura Mirto
Laura Mirto is the E3.series Technical Marketing Manager in North America. As a former E3.series applications engineering team member, providing useful information to our current and potential customers will always be one of her passions. One of Laura's favorite hobbies is arts and crafts; she is always up for learning a new art form.

Leave a Reply

Your email address will not be published. Required fields are marked *