Eliminate communication gaps with paperless engineering
Communication between disciplines is increasingly critical as complex designs require more and more collaboration. Communication gaps often riddle engineering companies. E3.WiringChecks and E3.WiringCockpit is here to facilitate communication between design, checking, commissioning, technicians, and all parties involved after the initial design. Both solutions work within the standard E3.series environment to move towards a paperless engineering future that reduces errors by improving communication between multiple disciplines.
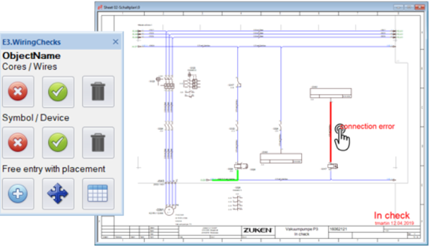
E3.WiringChecks
E3.WiringChecks improves communication between engineering and commissioning/production teams. Building upon the existing E3.redliner tool base, E3.WiringChecks enables annotation of drawings with detailed comments and categorization of error types. Additionally, it also opens up the design process to traceability during the full error cycle through discovery, correction, and validation. This means design engineers can catch preventable errors earlier in the design cycle. Therefore, preventing errors saves those enormous late-error-discovery costs, and reducing the cycle time for fixing errors.

E3.WiringCockpit
E3.WiringCockpit improves communication between design and installation technicians. Instead of technicians with highlighters chasing the wires in lists, schematics and panel drawings, E3.panel displays work instructions digitally. Wiring information such as wire gauge, wire color, and to-from device and pin, is all displayed in a simple user-friendly interface. The technician will see a, highlighted wire route within the physical model. The software digitally marks and tracks completed wires to ensure consistency across multiple wiring iterations.

The paperless approach improves error checking, quality control and production using digitally traceable communication methods. Most of all, this digital thread produces the immeasurable benefit of peace of mind and ease of use. Collaboration is achieved more completely and robustly than ever before.
Related Content
- Webinar
Paperless engineering improves accuracy, traceability, and schedule. Communication gaps riddle engineering companies, and E3.series tools E3.WiringChecks and E3.WiringCockpit is here to facilitate communication between design, checking, commissioning, technicians, and all parties involved after the initial design.
- Products
E3.AssemblingCockpit helps workers in the assembly department to select and assemble the individual parts for modular connector assemblies and other components that have to be assembled from comprehensive parts kits.
- Products
E3.WiringChecks assists the testing of fully wired machines, vehicles and control cabinets before and during the start-up phase.
- Products
E3.WiringCockpit enables the display of wiring paths and connection information on mobile devices.
