Communicating Design Information using Attribute Text Templates in E3.series

Tech Tip: Communicating Design Information using Attribute Text Templates in E3.series

Menu

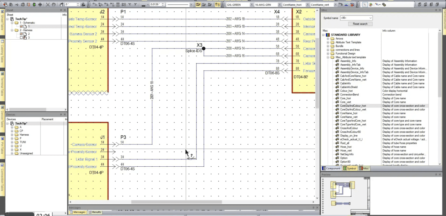
A detailed electrical drawing forms the basis of communicating the wiring and connection details to the manufacturing and support teams. It is important to share details of the logical and physical connections to ensure accurate comprehension of a system. The E3.series design suite enables users to add details such as signals, wires and termination details on connections (automatically in most cases).

An Attribute Text Template is the most common and effective solution to display the details of a connection on any drawing. These templates just like other symbols and components in the library are customizable to suit user preferences. As a result, a wide variety of attributes from wires, connectors, and devices can be combined to open almost limitless possibilities.

The text template is created and managed in the library editor with a sizeable selection available out of the box. The templates can be set to be added by default in the process of making connections as well as adding wires on a connection. A text template highlights the section of the wire or connection to signify the selection of the segment.

The ease of use as well as the quality improvements are an automatic side effect of using Attribute text templates to complete a detailed design. The following video will describe the different uses of the Attribute Text Templates.

Sanu Warrier
Sanu Warrier
Sanu Warrier has been a product leader in the Electrical industry working with multiple solutions over the last decade. He has been helping customers find effective solutions to their design challenges, drawing from R&D experience in software, hardware and solutions development. He is a self-professed foody and loves to dabble in gastronomic alchemy as often as possible. The main focus for Sanu continues to be Eliminating inefficiencies, improving design processes and reducing costs to improve your competitive advantage.

Leave a Reply

Your email address will not be published. Required fields are marked *