Menu
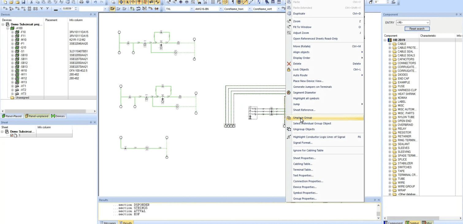
When dealing with multiple circuits or sections of drawings we wish to reuse together, unplaced groups can be used to organize and export them together. The exported E3P file can then be imported directly into other drawings or used to create a subcircuit. This subcircuit will contain multiple circuit sections to be placed into your project individually.
Also see:
